レイアウト図面 無料作成
あなたの意見を聞いて、焼鳥、串揚げ、寿司…居酒屋のレイアウト図面を作ります。
飲食店の厨房は車で例えるならエンジンです。保健所対策も求められます。
後悔しないためにはこのレイアウト図面がとても大切です。
内見調査、見積無料
現場訪問して厨房レイアウト図面を作成いたします。厨房機器の見積も無料で作成いたします。
融資の見積として利用して頂けます。
融資には時間がかかりますので早めにご依頼ください。
施工事例 居酒屋 都内
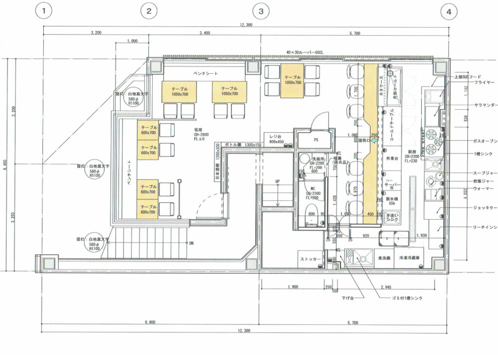
都内の繁盛居酒屋、この厨房で月商400万円位が対応可能です。
リーチイン冷蔵ショーケース、焼鳥は炭火コンロ…、居酒屋の厨房設計施工事例です。

下記は施工後の写真です。二槽シンクの上の2段棚が便利です。

立ち飲み居酒屋
立ち飲み居酒屋のレイアウト図面、配管は転がしで簡易的に施工、ドライキッチンなので低予算ですみました。家庭用湯沸かし器で保健所クリア、1人でできる厨房レイアウト設計。

施工は低予算で、ドライキッチンで置き型グリーストラップ、揚げ物をやるので…、家庭用レンジフード。床は同じ高さで給排水工事をしました。

厨房機器は全て新品、調理メニューの関係で厨房機器も低く抑えることができました。

施工事例
下記は新宿の納品事例、2F搬入 舟形シンクあり魚料理の和食居酒屋です。


最短1日で作成します
厨房のプロが対応しますので最短1日でレイアウト図面を作成いたします。
厨房設計で悩むようなら専門家にご相談ください。
給排水、電気、ガス工事、フードダクトの換気工事も考慮して図面を作成いたします。
無料訪問 図面作成いたします
現場訪問して厨房レイアウト図面を作成いたします。

訪問エリア 図参照
東京都、埼玉県、千葉県、神奈川県
電話相談 ご質問は
電話 049-239-3118 平日(月~金) AM9時~PM5時
お問合せは 下記フォームからお願い致します。
お問合せフォーム
お問合せは下記からどうぞ